Home » Properties » Unit 21 Laurence Industrial Estate

Unit 21 Laurence Industrial Estate

£1,250 pcm

REQUEST A VIEWING

Alternatively you can call us on 01702 39 49 59 or visit us in branch

This property is not currently available. It may be sold or temporarily removed from the market.

Key features

Ref: 21145

Type: Industrial

Unit 21 Laurence Industrial Estate

£1,250 pcm

LOCATION
Laurence Industrial Estate is located on the North side of the A127 and close to St. Laurence Church.

DESCRIPTION
A well located modern industrial unit located on the popular Laurence Industrial Estate. The premises has 3 phase to the fuse board, male and female. w.c. and an internal inspection is recommended. The Estate is gated and has an on site caretaker (a.m. weekdays), on site CCTV. The premises are to let on a monthly licence, no solicitors fees, early occupation.

ACCOMMODATION
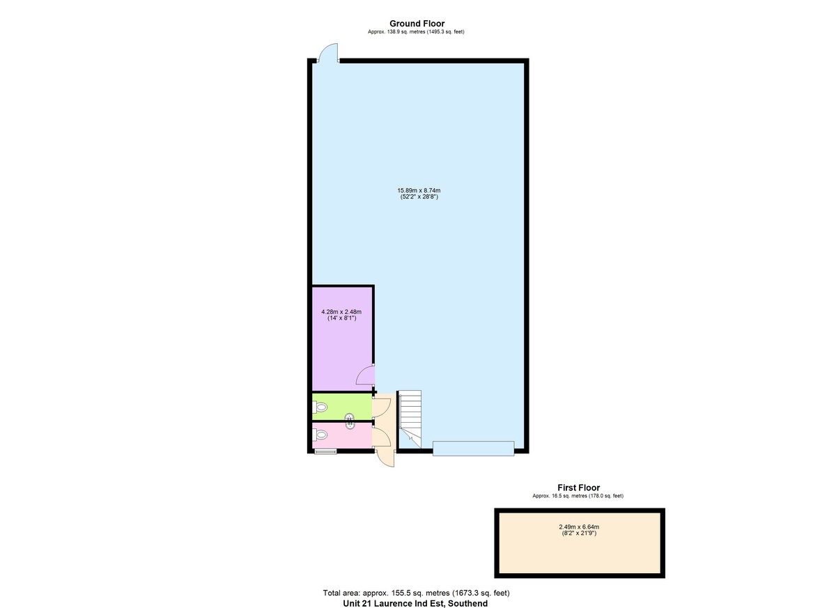
WORKSHOP (INCLUDING MALE AND FEMALE W.C.'S) 1,495 SQ.FT.

AMENITIES
London Southend Airport close by. A127 road links.

SERVICES
3 phase power to fuse board. Mains water (metered)

TERMS
To let on a monthly licence at a rent of £1,250 per calendar month + VAT. Rent is inclusive of service charge and building's insurance. No solicitor's fees or referencing. 2 month's deposit + 1 month in advance.

OUTGOINGS
The rateable value is £12,750 which is chargeable at 49p in the pound for the rating year to April 2025. Small business relief may apply.

VAT
VAT is payable on rent.

LEGAL COSTS
No legal costs.

SERVICE CHARGE
Service charge is included in the rent.

VIEWING
Prior telephone appointment with Hair & Son: 01702 394959 (Option 3).

Sorry there are no EPCs available for this property

Unit 21 Laurence Industrial Estate

0.00 - 1,495.00 Sq Ft
£1,250 pcm
  • Ref: 21145
  • Type: Industrial
  • Availability: To Let
  • Make Enquiry
  • Floorplan

Property Summary

A well located modern industrial unit located on the popular Laurence Industrial Estate. The premises has 3 phase to the fuse board, male and female.w.c. and an internal inspection is recommended. The Estate is gated and has an on site caretaker (a.m. weekdays), on site CCTV. The premises are to let on a monthly licence, no solicitors fees, early occupation. ...

Full Details

LOCATION
Laurence Industrial Estate is located on the North side of the A127 and close to St. Laurence Church.

DESCRIPTION
A well located modern industrial unit located on the popular Laurence Industrial Estate. The premises has 3 phase to the fuse board, male and female. w.c. and an internal inspection is recommended. The Estate is gated and has an on site caretaker (a.m. weekdays), on site CCTV. The premises are to let on a monthly licence, no solicitors fees, early occupation.

ACCOMMODATION
WORKSHOP (INCLUDING MALE AND FEMALE W.C.'S) 1,495 SQ.FT.

AMENITIES
London Southend Airport close by. A127 road links.

SERVICES
3 phase power to fuse board. Mains water (metered)

TERMS
To let on a monthly licence at a rent of £1,250 per calendar month + VAT. Rent is inclusive of service charge and building's insurance. No solicitor's fees or referencing. 2 month's deposit + 1 month in advance.

OUTGOINGS
The rateable value is £12,750 which is chargeable at 49p in the pound for the rating year to April 2025. Small business relief may apply.

VAT
VAT is payable on rent.

LEGAL COSTS
No legal costs.

SERVICE CHARGE
Service charge is included in the rent.

VIEWING
Prior telephone appointment with Hair & Son: 01702 394959 (Option 3).