Home » Properties » Unit 15 Capstan Centre

Unit 15 Capstan Centre

£1,590 pcm

DOWNLOAD BROCHURE
REQUEST A VIEWING

Alternatively you can call us on 01702 39 49 59 or visit us in branch

This property is not currently available. It may be sold or temporarily removed from the market.

Key features

Ref: 21298

Type: Industrial

Unit 15 Capstan Centre

£1,590 pcm

LOCATION
Located within Capstan Centre off of Thurrock Park Way, Tilbury.

DESCRIPTION
A lock up industrial premises in good decorative order and benefits from a mixture of office and storage space. The premises further benefits from an electric roller shutter loading door to the front offering easy access for loading and unloading, ground and mezzanine floor offices, shower room and w/c's and parking to the front. The premises offers a 3 phase electricity supply, mains water, gas supply (capped) and air-conditioning (not tested).

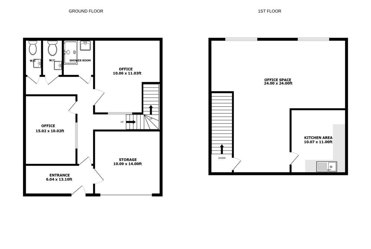
ACCOMMODATION
GROUND FLOOR: 768 SQ.FT (71.4 SQ.M)

FIRST FLOOR MEZZANINE OFFICES: 253.9 SQ,FT (23.6 SQ.M)

GROSS INTERNAL FLOOR AREA: 1,022 SQ.FT (95 SQ.M)

SERVICES
The premises offers a 3 phase electricity supply, mains water, gas supply (capped) and air-conditioning (not tested).

TERMS
The premises are held on a full repairing and insuring lease at a rent passing of £1,590 PCM (£19,080 Per Annum). VAT is to be confirmed along with the service charge.

OUTGOINGS
The rateable value is £10,750 which is chargeable at 49p. in the pound for the rating year to April 2023 to present.

VAT
To be confirmed.

LEGAL COSTS
The ingoing tenant will be responsible for the cost of the preparation of the lease agreement (Law Society Lease) which totals £350 plus VAT.

SERVICE CHARGE
To be confirmed.

VIEWING
By prior appointment via Hair & Son Estate Agents (Working with Kwester) - 01702 394959 (Option 3).

Unit 15 Capstan Centre

0.00 - 1,022.00 Sq Ft
£1,590 pcm
  • Ref: 21298
  • Type: Industrial
  • Availability: To Let
  • Make Enquiry
  • Floorplan
  • View Brochure
  • View EPC

Property Summary

Hair & Son are please to bring to the market, in conjunction with Kwester Property Management this lock up industrial unit situation within a central location of Tilbury and Tilbury Docks.

The premises is in good decorative order and benefits from a mixture of office and storage space. The premises further benefits from an electric roller shutter loading door to the front offering easy access for loading and unloading, ground and mezzanine floor offices, shower room and w/c's and parking to the front.

The premises offers a 3 phase electricity supply, mains water, gas supply (capped) and air-conditioning (not tested). ...

Full Details

LOCATION
Located within Capstan Centre off of Thurrock Park Way, Tilbury.

DESCRIPTION
A lock up industrial premises in good decorative order and benefits from a mixture of office and storage space. The premises further benefits from an electric roller shutter loading door to the front offering easy access for loading and unloading, ground and mezzanine floor offices, shower room and w/c's and parking to the front. The premises offers a 3 phase electricity supply, mains water, gas supply (capped) and air-conditioning (not tested).

ACCOMMODATION
GROUND FLOOR: 768 SQ.FT (71.4 SQ.M)

FIRST FLOOR MEZZANINE OFFICES: 253.9 SQ,FT (23.6 SQ.M)

GROSS INTERNAL FLOOR AREA: 1,022 SQ.FT (95 SQ.M)

SERVICES
The premises offers a 3 phase electricity supply, mains water, gas supply (capped) and air-conditioning (not tested).

TERMS
The premises are held on a full repairing and insuring lease at a rent passing of £1,590 PCM (£19,080 Per Annum). VAT is to be confirmed along with the service charge.

OUTGOINGS
The rateable value is £10,750 which is chargeable at 49p. in the pound for the rating year to April 2023 to present.

VAT
To be confirmed.

LEGAL COSTS
The ingoing tenant will be responsible for the cost of the preparation of the lease agreement (Law Society Lease) which totals £350 plus VAT.

SERVICE CHARGE
To be confirmed.

VIEWING
By prior appointment via Hair & Son Estate Agents (Working with Kwester) - 01702 394959 (Option 3).