Home » Properties » 316 London Road

316 London Road

£295,000

REQUEST A VIEWING

Alternatively you can call us on 01702 39 49 59 or visit us in branch

Key features

Ref: 21520

Type:

316 London Road

£295,000

LOCATION
Located within London Road, Westcliff-On-Sea between Milton Road and Hamlet Court Road.

DESCRIPTION
A mixed commercial/residential investment premises currently let on one commercial lease to the current occupier at a rent of £21,000 Per Annum. The premises comprises of a ground floor lock up premises trading as a café for the past 11 years which the first floor offers a self-contained 2 bedroom premises.

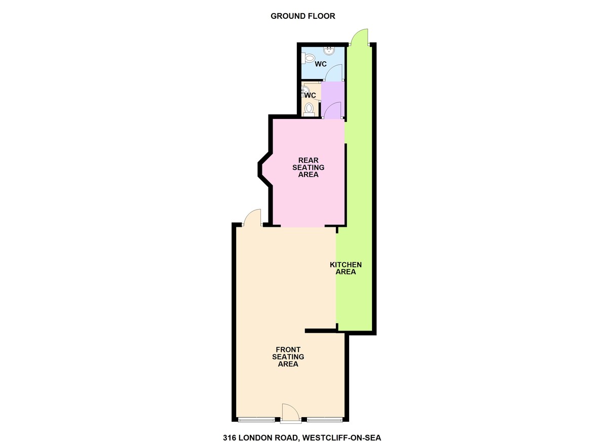
ACCOMMODATION
COMMERCIAL:
FRONT SEATING AREA: 28' X 16'
ADDITIONAL SEATING AREA/KITCHEN AREA: 15'9" X 14'7"
MALE & FEMALE W/C'S

EXTERNALLY: DEMISED REAR YARD

GROSS INTERNAL FLOOR AREA:

FIRST FLOOR 2 BEDROOM FLAT:

LOUNGE: 11'6" X 17'5"
BEDROOM 1: 13'2" X 11'9"
BEDROOM 2: 10'10" X 11'7"
BATHROOM
KITCHEN: 6'5" X 8'7"

EXTERNALLY: DEMISED GARDEN AREA

SERVICES
Mains Gas, Electricity & Water.

TERMS
An asking price of £295,000 is required for our clients freehold interest in these premises.

OUTGOINGS
The ground floor is rated as a café premises. The rateable value from April 2026 is £10,000 Small business rate relief may apply.

LEGAL COSTS
Each party is to be responsible for their own legal fees.

VIEWING
By prior telephone appointment via Hair & Son Commercial: 01702 394959 (Opt. 3)

Sorry there are no EPCs available for this property

316 London Road

0.00 - 720.00 Sq Ft
£295,000
  • Ref: 21520
  • Availability: For Sale
  • Make Enquiry
  • Floorplan

Property Summary

Hair & Son bring to the market this mixed commercial/residential investment premises all let within one commercial agreement which expires in 2029. Following a recent rent review the current rent payable is £21,000 Per Annum. The ground floor currently trades as a café premises and has for the past 11 years proving a strong trading position whilst the first floor 2 bedroom self-contained premises is let out by the leaseholder on a separate AST agreement. ...

Full Details

LOCATION
Located within London Road, Westcliff-On-Sea between Milton Road and Hamlet Court Road.

DESCRIPTION
A mixed commercial/residential investment premises currently let on one commercial lease to the current occupier at a rent of £21,000 Per Annum. The premises comprises of a ground floor lock up premises trading as a café for the past 11 years which the first floor offers a self-contained 2 bedroom premises.

ACCOMMODATION
COMMERCIAL:
FRONT SEATING AREA: 28' X 16'
ADDITIONAL SEATING AREA/KITCHEN AREA: 15'9" X 14'7"
MALE & FEMALE W/C'S

EXTERNALLY: DEMISED REAR YARD

GROSS INTERNAL FLOOR AREA:

FIRST FLOOR 2 BEDROOM FLAT:

LOUNGE: 11'6" X 17'5"
BEDROOM 1: 13'2" X 11'9"
BEDROOM 2: 10'10" X 11'7"
BATHROOM
KITCHEN: 6'5" X 8'7"

EXTERNALLY: DEMISED GARDEN AREA

SERVICES
Mains Gas, Electricity & Water.

TERMS
An asking price of £295,000 is required for our clients freehold interest in these premises.

OUTGOINGS
The ground floor is rated as a café premises. The rateable value from April 2026 is £10,000 Small business rate relief may apply.

LEGAL COSTS
Each party is to be responsible for their own legal fees.

VIEWING
By prior telephone appointment via Hair & Son Commercial: 01702 394959 (Opt. 3)